Gründerzeitvilla in Wesel am Nordglacis

1909, am Ende der Gründerzeit erbaut, basiert ihr äußerer Charme auf der Fassade mit Doppelgiebel, der Fachwerkoptik auf sanftem Gelb, den Holzsprossenfenstern und der Einbettung in das üppige Grün des Nordglacis.

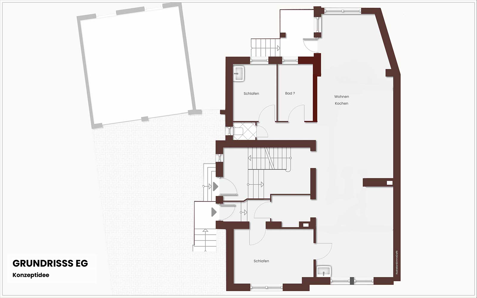
Im Innern warten ca. 260 m², verteilt auf Erd-, Ober- und Dachgeschoss, auf neue Besitzer. Erdgeschoss und Obergeschoss versprühen mit einer Raumdeckenhöhe von ca. 3,30 m gekonnt historisches Ambiente.
Ehemals als Arztpraxis genutzt, besitzt das Erdgeschoss 6 Räume mit Zugang zum Garten. Über ein gemeinsames Treppenhaus mit Eichenholztreppe, versehen mit floralen Intarsien sowie einem Bleiglasfenster im Jugendstil, sind alle Ebenen optional miteinander verbunden.

Das Obergeschoss, die Belle Étage, beeindruckt mit Echtholzböden, einer großzügigen Küche, einem Wohn-Esszimmer mit offenem Kamin nebst Wintergarten, der ebenso wie ein Arbeitszimmer Gartenblick besitzt. Das Dachgeschoss überzeugt mit vier Schlafzimmern nebst einer Dachterrasse.

Die Villa liegt auf einem weitläufigen Grundstück von ca. 817 m². Eine Doppelgarage, ein Pavillon und 2 Parkplätze am Haus bieten modernen Komfort. Letztere sind ebenso wie der Balkon, der Wintergarten und die Dachterrasse später hinzugefügt worden, ohne gleichsam die Aura des Hauses zu beeinträchtigen. Vielmehr sorgen sie für mehr Behaglichkeit der Bewohner durch Erweiterung des Grünraums.

Wer einmal im Wintergarten gesessen oder auf der Dachterrasse den Morgen begrüßt hat, bekommt eine Ahnung von einem glücklichen Leben an diesem Ort.


Ausstattung der Villa Am Nordglacis

Wohnbereiche: Wohnfläche gesamt ca. 260,37 m² gemäß Konzeptvariante Erdgeschoss mit möglicher Umgestaltung der ehemaligen Praxis zu Wohnräumen.
Obergeschoss mit Wohnbereich, Wintergarten, Küche, Büro und Balkon,
Dachgeschoss als Schlafetage mit fünf Räumen, Bad und Dachterrasse
Kellergeschoss mit ca. 85 m² Nutzfläche und fünf Räumen

Massivbauweise, zweigeschossig, einseitig angebaut, voll unterkellert Dachgeschoss ausgebaut Außenfassade verputzt, straßenseitig im Ober- und Dachgeschoss mit vorgesetzter Fachwerk-Dekoration.
Holzfenster und Kunststofffenster. Dach als Holzkonstruktion mit Ziegeldeckung. Decke über dem Kellergeschoss massiv, darüber überwiegend Holzbalkendecken. Gartenseitiger Anbau mit Terrassenkonstruktion in Stahlbeton. Altbautypische Deckenhöhen von ca. 3,40 m im Erdgeschoss, ca. 3,20 m im 1. Obergeschoss und ca. 2,75 m im Dachgeschoss.

Weitere Informationen in unserem Exposé / Broschüre zu der Villa

Wohnen in begehrter Lage am Nordglacis

Die Immobilie liegt in einer ruhigen, wohngeprägten Lage von Wesel – in direkter Nähe zum Nordglacis, das als Teil des Weseler Glacis den historischen Innenstadtkern als grüner Gürtel begleitet und von Wegen für Fußgänger und Radfahrer durchzogen ist. Damit verbindet die Lage zwei Qualitäten, die selten zusammenkommen: spürbare Ruhe und die Nähe zur Stadt, zum Rheinufer und zum Auesee. Die gewachsene Umgebung ist von Wohnbebauung geprägt und wirkt angenehm zurückhaltend. Gleichzeitig sind zentrale Verkehrsachsen wie Herzogenring und Kaiser-/Kaiserring gut erreichbar.

Gerade die Nähe zum Grünstreifen am Nordglacis gibt dem Standort einen besonderen Reiz und ist begehrt. Wege durch das Glacis, kurze Verbindungen in die Innenstadt und die gute Erreichbarkeit machen diese Lage zu einer sehr angenehmen Verbindung von Stadt und Freiraum.

Villa - Details

  • Immobilie: Ein- Zweifamilienhaus
  • Grundstück: ca. 817 m²
  • Wohnfläche: ca. 260 m²
  • Räume: 11 (je nach Planung)
  • Schlafzimmer: 4-6
  • Bäder/Duschbereiche: 2-3
  • Heizung: Öl-Zentralheizung, Baujahr 1997
  • Energieausweis: Energiebedarf: 362,8 kWh/(m²·a) | Klasse „H“ Ausweis gültig bis 8.4.2036
  • Garage/Stellplatz: 2 Garagen
  • Baujahr: 1909
  • Modernisierung: 1956 und Folgejahe
  • Preis: 828.000 Euro
  • Provision: Courtage in Höhe von 3,57% (inkl. 19% MwSt) vom notariell beurkundeten Kaufpreis, verdient und fällig bei Vertragsabschluss.
  • Ansprechpartner: Dirk Mackscheidt | Immobilienteam.de
  • Jetzt Exposé & weitere Informationen anfordern


Weitere Immobilien und Referenzen


Jetzt Exposé & weitere Informationen anfordern